いすみ市新田の田園風景を望む静かなエリアに3DKのコンパクトな
中古住宅が出ました。
物件は、いすみ鉄道「西大原」駅から徒歩9分ほどよい距離にあり、
普段の通勤・通学や買い物にも便利。ローカル線の素朴な風景も魅力です。
土地は約50坪以上。程よい広さで管理もしやすく、田舎暮らしを楽しみ
たいけど広い土地は管理が大変・・とお考えの方、田舎暮らしデビュー
の方にもぴったりです。
ミニ菜園も可能。季節の野菜やハーブを育てる事も出来そうですね。
駐車スペース1台分あり。生活の利便性もバッチリです。
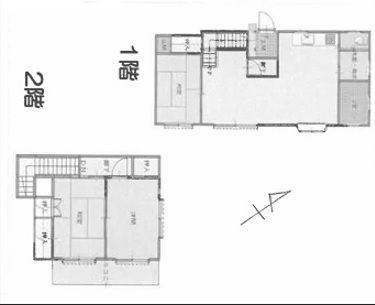
建物は、3LDK+2階建てのコンパクトサイズ。必要な空間がきちんと
揃ったムダのない間取り。家族暮らしにも、二拠点生活にもフィット。
なお、経年劣化による不具合が見られるため売買価格もこれらの
状況を考慮したものです。LDK・1階和室床に傾きが見られます。
その他、外壁・屋根の塗装、水回りのリフォームも必要ですが、
リフォームをすればまだ十分に使用可能です。
リフォーム前提の物件ですが、自ら手をかけて「自分色の家」が
つくれる楽しさがあります。事前に補修箇所を確認のうえ、
計画を立てることで安心してお住まいになれると思います。
ハザードマップで土砂災害警戒区域(イエローゾーン)に入って
いますが、過去に土砂災害はありません。
<ライフインフォメーション>
東海小学校:1500m(徒歩19分) ヤックスドラッグ 2360m(徒歩30分)
ヤマダ電機 2900m(徒歩36分) カインズホーム 3600m(車5分)
ベイシアいすみ店 3800m(車6分)
セブンイレブン 2400m(徒歩30分)いすみ市役所 2310m(徒歩29分)
土屋外科内科 2580m(徒歩33分)



























物件情報
この物件へのお問い合わせ
メールフォームからお問い合わせ