広い敷地と日本家屋の趣を楽しめる大型古民家、二拠点生活・民泊利用にも
いすみ市荻原に日本家屋のぬくもりを感じながら田舎暮らしを楽しめる
大型古民家母屋7LDK+蔵+離れ)をご紹介いたします。
392坪超の広い敷地では、造園・家庭菜園・ガーデンイングなどを
楽しみながら季節の移ろいを感じられます。
母屋は昭和23年築の趣ある古民家!天然の無垢材など自然素材を使用し、
建具や梁、細かな細工にまで職人の手仕事が光ります。
今ではなかなか建てられない価値ある造りの建物で、現在同等の建物を
建てたら母屋だけで6,000万円くらい費用がかかりそうです。
家の中に入れば、昭和の暮らしにタイムスリップしたような懐かしい
雰囲気が味わえますよ。
大型古民家の他、離れ(居宅+物置)や蔵(倉庫)もありますので、
居住(別荘・永住)以外にもアイデア次第で色々活用出来そうです。
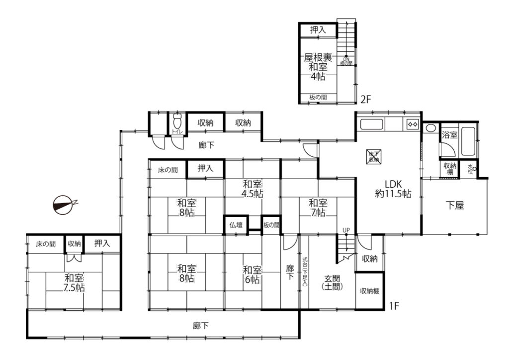
建物は部屋数の多い7LDKの大型住宅なので、ゲストハウス・民泊・
趣味の工房・アトリエ付き住宅など、古民家を活かした事業を考えて
いる方などにおすすめです。
自然素材の古民家のため、化学物質に敏感な方にも安心。
森林浴のような心地よさの中で、健康的な時間をお過ごしいただけます。
古民家には一般住宅のように築年数だけでは図れない歴史的付加価値が
あります。築年数が古いから価値が無いという先入観を持たずに、
建物の価値が分かる方からのお問合せをお待ちしています。
<おすすめポイント>
・昭和23年築の趣ある古民家
天然の無垢材など良質な建材を使用した古民家!
築年数だけでは図れない歴史的付加価値があります。
・蔵と離れ付き
古民家カフェ、民泊、趣味の工房、アトリエ、ゲストハウスなど、
アイデア次第で多目的利用可。
・広い敷地で家庭菜園、ガーデニングなど可
約392坪の広い敷地で、造園・家庭菜園・ガーデニング可。
<ライフインフォメーション>
スーパーランド(食料品スーパー)4670m(車7分)
ヤックスドラッグ 4780m(車7分)
コメリH&G(ホームセンター) 4940m(車7分)
いすみ市役所夷隅庁舎 4870m(車7分)
国吉中学校 5090m(車8分)
いすみ医療センター 5490m(車8分)

















-1024x768.jpg)
.jpg)
















.jpg)







.jpg)

.jpg)



間取り-1024x731.jpg)














1.jpg)
2-1024x768.jpg)

間取り-1024x1024.jpg)

本物件は土砂災害警戒区域内に位置していますが、
建物は長年この場所に建っており、
これまで大きな災害被害の報告はありません。
物件情報
この物件へのお問い合わせ
メールフォームからお問い合わせ