西武グリーンタウン大原(いすみ市大原台)A街区のゴルフ場近くに
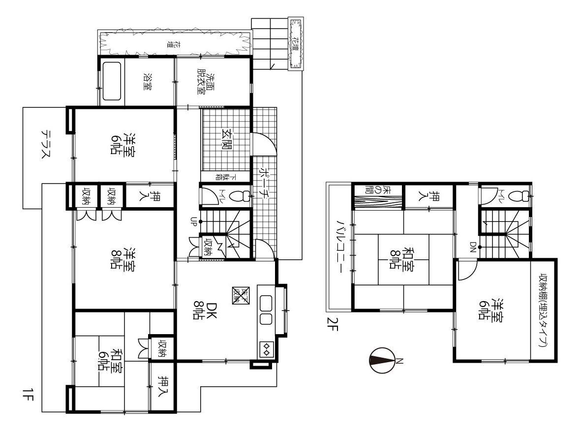
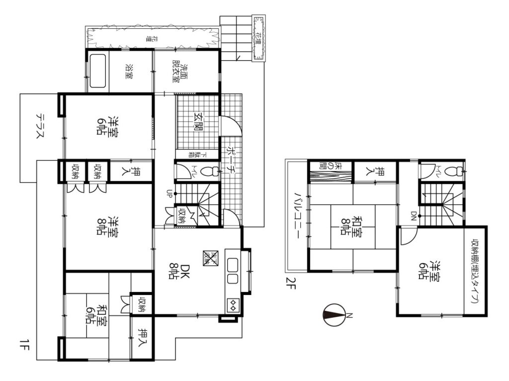
物置付きの中古住宅(5DK+物置)が出ました。敷地の南側にはガーデニング等
楽しめる庭があります。
大原台は総区画数937の緑あふれる閑静な分譲地です。
物件は海抜約59mの高台にあり、敷地は道路よりも少し高いので、
津波の心配も無く、大雨が降っても床上浸水等の被害は無さそうです。
建物は築後41年経過しておりますが、内装は良質の建材を使用しています。
また、平成24年に内外装リフォームを実施しており、令和6年にも外壁塗装
を実施しています。
内装はクロスの剥がれ等が見られるためリフォーム推奨ですが、
定期的にメンテナンスをされているため、同じ築年数の建物と比較すれば
管理状態は良い方だと思います。
物置(9.93㎡)は、前所有者が平成25年に中古の建材を使用して建てたもの。
物置の他、犬猫用の小屋としても利用出来そうです。
西武グリーンタウン大原は、大型スーパーまで約4km離れているため
生活には車が無いと不便ですが、住環境を保護するために独自の
地区計画が定められていて嫌悪施設等は一切建築できないため、
環境重視の方にはおすすめです。
<過去のリフォーム履歴>
<平成24年8月:内外装リフォーム実施>
外壁塗装、全室クロス貼替え、畳表替え、障子・襖貼替え、
トイレ(便器)交換、1.2階洋室カーペット貼替え、ガスコンロ交換、
給湯器交換、エアコン5台新設置 etc..
令和6年4月:外壁塗装実施
<ライフインフォメーション>
大原・御宿ゴルフコース → 580m(徒歩8分)
浪花保育所 → 1660m(徒歩21分) 浪花小学校 → 2.8km(車4分)
大原台クリニック → 1950m(徒歩25分)
セブンイレブン → 2.5km(車4分) 吉野歯科医院 → 3.1km(車5分)
コメリ → 3.3km(車5分) ツルハドラッグ → 3.7km(車6分)
スーパーおおたや → 4.3km(車6分)














.jpg)

















-間取り-1024x767.jpg)



<おすすめポイント>
◇1.5坪の広い浴室(タイル使用) ◇全室エアコン完備(6台)
◇南側にガーデニング等楽しめる庭あり ◇大原・御宿ゴルフコースまで580m
◇海抜59mの高台で地震・津波にも安心
※当日の急な案内には対応出来ない事がありますので、内覧希望の方は事前にご予約をお願いします。
物件情報
この物件へのお問い合わせ
メールフォームからお問い合わせ