※2025年4月7日:280万円→250万円 新築パースあり
いすみ市大原台(西武グリーンタウン大原)分譲地の大原御宿ゴルフ場側
(A街区)にある自社物件の土地(売地)をご紹介します。
敷地は他の区画よりも少し広めの120坪。道路幅員も6mで車の出入りも楽々。
物件は海抜約65mの高台にあるため津波の心配もなし。
日用品の買物等は車が無いと不便ですが、地区計画により住環境や景観が保護
されているため、変な商業施設は一切建ちません。
西武グリーンタウン大原は地盤も強いので地震など自然災害が気になる方には
おススメのエリアです。※当社売主のため仲介手数料なし
<ライフインフォメーション>
◇大原・御宿ゴルフコースまで700m(徒歩9分)
◇大原台クリニックまで1170m(徒歩15分)
◇浪花保育所まで1300m(徒歩17分)









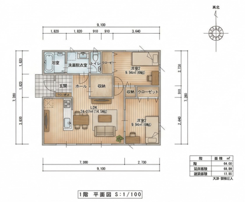
・大原台 コンパクトサイズの新築平屋 価格:2510万円(案)
床面積:64.59m2(19.53坪) 2LDK+S(納戸)
完成までの工期:3~4か月
<設備等>
UA値平均0.54.、C値平均0.8の高水準、対面キッチン&水回り集約
省エネルギー対策、高気密高断熱住宅、年内引渡可、駐車3台以上可、避暑地、
南向き、対面システムキッチン、全居室収納、浴室1坪以上、複層ガラス、
南庭、通風良好、全居室フローリング、全居室6帖以上、全室2面採光、高台、
周辺交通量少なめ、オール電化、スマートキー
新築平屋住宅のパース(イメージ図です)



-768x1024.jpeg)
-768x1024.jpeg)
-768x1024.jpeg)










※こちらのプランで建築確認を取得していますが、
建築条件付き土地ではありません。お好きな工務店で建築は可能です。
土地に建物は建っておりません。買い手が決まってから建築に入ります。
間取り変更の場合は、計画変更手続きが必要です。
物件情報
この物件へのお問い合わせ
メールフォームからお問い合わせ